Проект вентиляционной системы для салона красоты
Подбор вентиляции
Узнайте стоимость оборудования и монтажа системы вентиляции, ответив на 5 простых вопросовКак работает наша компания
+7 (812) 448-53-62 (Санкт-Петербург)
+7 (495) 109-33-43 (Москва)
+7 (800) 777-84-50 (Регионы)
или заявка на сайте
Лучшие предложения
Преимущества работы с компанией ЭлВент
|
Оформите заявку на сайте, мы свяжемся с вами в ближайшее время и ответим на все интересующие вопросы.
|
Заказать услугу
|
Правильно составленный и воплощенный в жизнь проект вентиляционной системы для салона красоты поможет сформировать оптимальные показатели микроклимата, обеспечивающие посетителей и работающий персонал максимально комфортными условиями пребывания на территории помещения.
Салоны красоты относятся к типу помещений, имеющих определенную специфику, а также свои сложности процесса организации вентиляционной системы. Специфика будет заключаться в мультизадачности соответствующих организаций, а также во внушительном спектре разноплановых услуг, оказываемых на их территориях. Здесь, помимо зон оказания маникюрных и парикмахерских услуг, может присутствовать зона солярия, СПА-зона, косметологическая зона и т.д. Кроме того, многие салоны красоты также оснащаются душевыми кабинками, саунами, а также чередой подсобных помещений бытового назначения, предназначающихся для хранения красок, химических препаратов, всевозможных материалов и т.д.
Каждое помещение, располагающееся на территории салона красоты, нужно оснастить качественной и грамотно продуманной вентиляционной системой, опираясь на требования, взятые из нормативов СНиП 2.04.05*91 и СНиП 2.08.02*89. Качественно функционирующая вентиляционная система должна дополняться комфортабельными условиями внутреннего микроклимата, которые формируются за счет эффективной работы системы кондиционирования воздуха.
Открывая салон красоты, располагающийся на первом этаже административного или жилого здания, нужно выводить вытяжку выше конька кровли. Простыми словами, вытяжная труба должна вести на крышу, что поможет избежать риска проникновения неприятных запахов в окна офисов или квартир, расположенных над салоном красоты. Контролирующие органы с особой тщательностью следят за этим моментом.
Если салон красоты располагает большим количеством кабинетов небольшого размера, то устанавливать по кондиционеру на комнату просто нецелесообразно. Настенные блоки сплит-системы не смогут эффектно вписаться в интерьер маленького помещения, плюс будут выдавать слишком сильный поток холодного воздуха, от чего клиентам солона будет некомфортно. Для маленьких кабинетов лучшим вариантом будет установка централизованной системы кондиционирования на базе канального кондиционера.
Специфика вентиляционной системы в салоне красоты
При составлении проекта вентиляционной системы для помещений парикмахерской или салона красоты необходимо учитывать следующие особенности.
- Высокий уровень выделения тепла и влаги, связанный с постоянно происходящим процессом мытья волос и последующего их высушивания. Данный фактор приводит к возникновению и развитию плесневых колоний, а также общему распространению инфекций и бактериальных микроорганизмов.
- Значительное количество испарений от химических веществ, таких как краски для волос, растворители, средства для укладки, материалы для маникюра и т.д. Учитывая тот факт, что в салоне красоты постоянно находится большое количество посетителей и рабочего персонала, нужно дать возможность людям свободно дышать.
Чтобы сформировать в салоне красоты здоровый микроклимат, поддерживаемый постоянным притоком чистого уличного воздуха, нужно строго соблюдать существующие санитарно-гигиенические правила и нормы.
Требования к вентиляционным системам в салонах красоты
Вентиляционные системы в салонах красоты и парикмахерских должны обустраиваться в соответствии с требованиями, прописанными в таких нормативных документах, как СНиП 2.04.05*91 и СНиП 2.08.02*89. Кроме того, они должны соответствовать санитарно-эпидемиологическим нормам в плане насыщения атмосферы помещения максимально допустимой концентрацией загрязняющих токсических и химических веществ. Необходимо учитывать и типовые виды загрязнителей, к числу которых относятся бактерии, грибковые споры, пыль и т.д. Если говорить о парикмахерских и салонах красоты, которые находятся в жилых домах, то общим требованием к ним будет необходимость оборудования помещения автономной вентиляционной системой, с обустройством вытяжки выше кровельного уровня.
В соответствии с нормативными положениями СНиП и САНПИНа 2.1.2.1199*03, вентиляционные и кондиционерные системы парикмахерских и салонов красоты должны обеспечивать формирование микроклимата со следующими показателями:
- Уровень влажности - от 40 до 60 процентов.
- Внутренняя температура - от 21 до 24 градусов Цельсия.
- Скорость циркуляции воздушных потоков – 0,1 метра в секунду.
Вентиляция в салоне красоты должна обеспечивать не только поступление чистого воздуха в нужном количестве, но и уменьшение предельно допустимой концентрации до определенного уровня.
- Ацетон — до 200 мг на кубометр;
- Сероводород — до 10 мг на кубометр;
- Триогликолиевая кислота — до 0,1 мг на кубометр;
- Аммиак — до 20 мг на кубометр;
- Парафенилдиамин — до 0,1 мг на кубометр.
Одним из наиболее важных аспектов, нуждающихся в учете в процессе организации вентиляционной системы, является шумность вентиляции. Если говорить о таких организациях, как парикмахерские и салоны красоты, то они предоставляют расслабляющие, релаксирующие услуги, несовместимые с раздражающими сторонними шумами, создаваемыми движением воздуха по воздуховодам. Шумная работа вентиляции действительно может сильно ухудшить качество клиентского комфорта в процессе пребывания людей на территории салона и получения соответствующих услуг. Чтобы гарантировать вентиляционной системе максимально тихую эксплуатацию, необходимо провести правильные расчеты скорости передвижения потоков воздуха по воздуховодам. Оптимальный подбор слабошумных воздухораспределительных устройств, использование звукоизолированных корпусов, обеспечение воздуховодов шумоизоляцией – вот те действия, которые помогут справиться с проблемой шумности системы.
Особенности вентиляционной системы в салоне красоты с учетом помещений разного назначения
- СПА-кабинеты
В СПА-салонах выделяется достаточно большое количество влаги и специфических ароматов. Как следствие, вентиляционные системы здесь должны заниматься эффективным осушением воздушной массы, а также ее своевременным и полноценным выводом за пределы помещения. Заглянув в СанПиН 2.1.2.1199*03, вы увидите, что помимо вентиляции механического типа в СПА-салонах должен организовываться естественный приток свежего воздуха, что можно обеспечить как стандартным проветриванием через окна и двери, так и установкой приточных клапанов и тому подобных систем. Достичь необходимого (нормативного) уровня влажности помогут канальные или мобильные осушители, либо увлажнители воздуха, если уровень влажности слишком низкий. Что касается вытяжки воздуха для кабинетов маленькой площади, то она может организовываться с помощью канальных или настенных вытяжных вентиляторов, мощность которых должна быть рассчитана правильным образом.
- Солярии
Многие салоны красоты предоставляют своим клиентам услуги солярия, где можно получить качественный и равномерный загар, пусть и искусственного происхождения. Оборудование для солярия, представляющее собой ультрафиолетовые лампы, обладают одним существенным недостатком. В процессе их эксплуатации в воздух выделяется большое количество озона. Превышение максимальной концентрации озона в атмосфере помещения неизбежно приводит к ухудшению самочувствия персонала и клиентов, а также к определенным проблемам со здоровьем.
В соответствии с гигиеническими нормами 2.1.6.584*96, предельно допустимая концентрация озона в помещении составляет 0,03 миллиграмма на кубический метр воздуха. Таким образом, вентиляционная система в солярии должна поддерживать уровень содержания озона на допустимом уровне, одновременно заботясь об отведении излишней тепловой энергии. Чтобы поддерживать концентрацию озона в солярии на нормативном уровне, кратность воздухообмена при работающей вентиляции должна составлять от 3 единиц и более.
В современных условиях салоны красоты зачастую устанавливают специализированные модели кабин для солярия, которые уже имеют встроенную автономную вентиляционную систему. Она занимается отведением отработанных воздушных масс в самостоятельном режиме. Во всех остальных случаях рекомендуется организовывать вентиляцию для солярия на базе приточно-вытяжной системы, которая должна работать отдельно от общей вентиляции салона красоты. Базовые положения радиологии указывают на недопустимость смешивания озонированного воздуха с чистым воздухом. То есть, отведение воздушных масс, загрязненных озоном, должно осуществляться отдельно.
- Маникюрные кабинеты
Рабочие кабинеты и помещения, на территории которых оказываются маникюрные и педикюрные услуги, должны обязательно оснащаться дополнительной вытяжкой, которая относится к локальному и принудительному типу. При этом кратность воздухообмена для кабинетов маникюрного обслуживания также должна составлять от 3 единиц и выше. В маникюрных и педикюрных кабинетах зачастую используются столы со встроенной вытяжкой автономного типа, которая должна быть подведена к общей вытяжке посредством использования воздуховода.
Как рассчитывается вентиляционная схема для салона красоты?
Чтобы рационально спланировать вентиляционную систему для помещений салона красоты, нужно разработать индивидуальный проект, на основе которого будут проведены все необходимые расчеты по нормам воздухообмена. Это поможет избежать замечаний и фиксации нарушений со стороны контролирующих организаций.
В процессе проведения расчетов обязательно нужно учесть особенности эксплуатации помещений для салонов красоты, с прибавлением единицы массы в пользу вытяжного оборудования. Если говорить о помещениях, общая площадь которых не превышает 50 квадратных метров, то здесь допускается использование естественной вентиляционной системы, без нормирования притока воздушных масс. Вытяжка в данном случае будет ограничена однократным воздухообменом. В случае, когда общая площадь составляет 80-100 квадратных метров, на однократный приток воздушной массы должна приходиться двукратная вытяжка. При превышении показателя площади в 100 квадратных метров, на две единицы притока должно приходиться три единицы вытяжки. Для парикмахерских и салонов красоты, площадь которых превышает 150 квадратов, требуется оборудовать вентиляцию приточно-вытяжного типа с обязательным использованием фильтров для воздуха, выбрасываемого в атмосферу.
Высококачественная вентиляционная система приточно-вытяжного типа для парикмахерской или салона красоты поможет обеспечить грамотную циркуляцию воздушных масс, привести к нормативным показателям кратность воздухообмена, а также обеспечить достойную фильтрацию как для приточного, так и для отводимого воздуха. Системы приточно-вытяжного типа, оснащенные устройствами для рекуперации, также позволят вам сэкономить денежные средства на обогрев помещения посредством автоматического нагрева воздуха, поступающего с улицы в холодный сезон. Помните, что правильная организация вентиляционной системы для салона красоты доступна только в том случае, если за дело берется квалифицированный и опытный профессионал. Специалист поможет вам избежать проблем с качеством воздуха, клиентским комфортом и нападками контролирующих инстанций
|
Оформите заявку на сайте, мы свяжемся с вами в ближайшее время и ответим на все интересующие вопросы.
|
Заказать услугу
|
-
Системы вентиляции
-
Проектирование
- Проектирование вентиляции для производственных зданий
- Проектирование вентиляции в квартире
- Проектирование систем вентиляции
- Проектирование и монтаж вентиляции
- Проектирование вентиляции ресторана
- Проектирование вентиляции и кондиционирования
- Проектирование вентиляции в частном загородном доме
- Проектирование вентиляции бассейна
- Проектирование вентиляции
- Проект вентиляционной системы для серверной
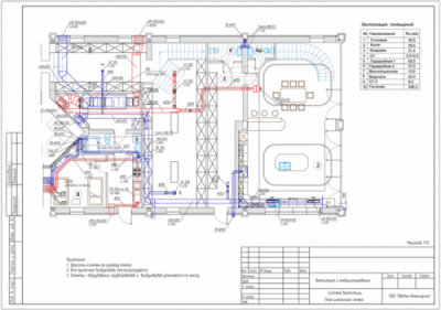
- Проект вентиляционной системы для салона красоты
- Проект вентиляционной системы для медицинского центра
- Проект вентиляционной системы для гаража
- Нормативные требования к современным вентиляционным системам
- Как составить проект вентиляции фитнес-центра?
- Как составить проект вентиляции стоматологии?
- Как составить проект вентиляции склада?
- Как составить проект вентиляции офиса?
- Как составить проект вентиляции клуба или кинотеатра?
- Как составить проект вентиляции гостиницы?
- Вентиляция здания
- Поставка оборудования
- Производство фильтров
-
Монтаж вентиляции
- Монтаж вентиляции в многоквартирном доме, цена Москве
- Проектирование и монтаж воздуховодов вентиляции, цена Москве
- Установка в гостиницах, отелях и хостелах
- Проектирование и монтаж в торговом центре ТРК, цена Москве
- Монтаж противодымной вентиляции
- Проектирование и монтаж приточно-вытяжной системы, цена Москве
- Монтаж системы вентиляции в квартире
- Установка приточной системы вентиляции
- Проектирование для жилых зданий и помещений
- Проектирование для кинотеатра под ключ
- Проектирование вентиляции постирочных
- Проектирование помещения архива под ключ
- Вытяжная вентиляция для коттеджей, цены
- Проектирование для кафе под ключ
- Монтаж вытяжной вентиляции в кабинете, цена Москве
- Проектирование вентиляции дома из кирпича
- Проектирование вентиляции для одноэтажного дома
- Проектирование вентиляции для каркасного дома, цены
- Монтаж вытяжной вентиляции дома из газобетона
- Проектирование вентиляции для двухэтажного дома
- Проектирование вентиляции для больниц и поликлиник
- Проектирование вентиляции в бане под ключ
- Приточно-вытяжная система вентиляции в офисе
- Приточно-вытяжная вентиляция для ресторана
- Приточно-вытяжная вентиляция в бассейне, цена Москве
- Монтаж система вентиляции столовой под ключ, цена Москве
- Монтаж систем вентиляции для складов под ключ
- Монтаж систем вентиляции в стоматологии, цена Москве
- Установка систем вентиляции на производстве, цена Москве
- Монтаж промышленных систем вентиляции в Москве
- Установка приточно-вытяжной системы вентиляции в Москве
- Монтаж и установка принудительной вентиляции в доме
- Монтаж и установка вентиляции для продовольственного магазина
- Расчет вытяжной вентиляции спортзала (фитнес-клуба)
- Монтаж вентиляции на производстве под ключ, цена Москве
- Монтаж вентиляции в парикмахерской и салоне красоты.
- Проектирование вентиляции в панельном доме, цена Москве
- Монтаж и проектирование вентиляции в детском саду
- Монтаж вентиляции. Стоимость услуг установки, под ключ в Москве
- Монтаж вентиляции для ночных клубов и танцевальных залов
- Проектирование и монтаж вентиляции для автостоянок, цена Москве
- Проектирование и монтаж вентиляции для автомоек под ключ
- Калькулятор и расчет стоимости работ по монтажу
- Для котельной
- Для загородного дома
- Для дачи
- Для гаража
- Горячий цех
- Вентиляция серверной
- Вентиляция под ключ
- Вентиляция овощехранилищ под ключ в Москве
- Вентиляция на предприятиях общественного питания Москве
- Вентиляция в новостройке
-
Обслуживание систем вентиляции
- Сервисное обслуживание приточно-вытяжной установки от 1000 до 2000 м³
- Сервисное обслуживание приточно-вытяжной установки до 1000 м³
- Техническое и сервисное обслуживание системы вентиляции в квартире Москве: цена и стоимость работ
- Техническое и сервисное обслуживание систем промышленной вентиляции и вентиляционного оборудования Москве
- Техническое и сервисное обслуживание приточной системы вентиляции Москве: цена и стоимость работ
- Техническое и сервисное обслуживание приточно-вытяжной системы вентиляции Москве: цена и стоимость работ
- Сервисное и техническое обслуживание вентиляции в Москве: цена, стоимость и периодичность работ
- Ремонт
-
Проектирование
-
Системы кондиционирования
-
Обслуживание кондиционеров
- Чистка кондиционеров в Москве от компании ЭлВент: сколько стоит почистить кондиционер, цена
- Чистка и дренаж сплит-системы в Москве: стоимость услуги
- Чистка и дренаж внутреннего блока кондиционера и сплит систем
- Чистка дренажа кондиционера, как прочистить дренажную трубку сплит-системы
- Чистка внешнего блока кондиционера и дренаж наружного блока сплит систем в Москве
- Техническое обслуживание и сервис сплит-систем, мульти-сплит: стоимость техобслуживания сплитов в Москве
- Сервисное и техническое обслуживание кондиционеров в Москве
- Сервисное и техническое обслуживание климатического оборудования, систем и техники в Москве
- Сервис и техническое обслуживание систем кондиционирования воздуха в Москве
- Заправка сплит-систем фреоном в Москве от компании ЭлВент: сколько стоит заправить сплит, цена
- Заправка кондиционера фреоном от компании ЭлВент в Москве: стоимость услуг, цена
- Заправка домашних бытовых кондиционеров фреоном в квартире от компании ЭлВент: сколько стоит заправить, цена
-
Ремонт и диагностика
- Прайс и стоимость работ Диагностика и ремонт кондиционеров в Москве: цена, стоимость услуг
- Диагностика и срочный ремонт кондиционеров в Москве: цена, стоимость услуг
- Диагностика и ремонт систем кондиционирования в Москве: цена, стоимость услуг
- Диагностика и ремонт мульти сплит-систем в Москве: цена, стоимость услуг
- Диагностика и ремонт бытовых домашних кондиционеров в Москве: цена, стоимость услуг
- Прайс
- Монтаж кондиционирования
- Проектирование
- Калькулятор
- Согласование установки кондиционеров
-
Обслуживание кондиционеров
- Автоматизация АОВ
- Системы холодоснабжения
- Алмазное бурение
- Установка бризера
- Установка кондиционера
